流すま
流山市の不動産情報 流すま
553ただいま公開中
2025.12.25更新

マンション 江戸川台小田急ハイツ20号棟

New
1/4

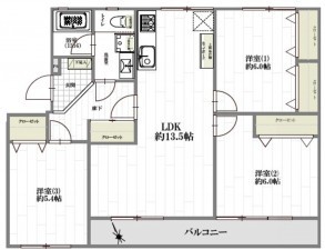
【間取り】

  • 南面バルコニー
  • 所在地
    流山市富士見台2丁目
    1,448万円
    76.66m² 3LDK

    ◆空室につき内見可
    ◆リノベーション物件
    ◆耐震基準適合証明書取得可
    ◆東武アーバンパークライン「江戸川台」駅徒歩13分
    ◆専有面積76.66㎡、3LDK

    月々の
    支払例
    万円
    %

    ※弊社提携銀行/借入金1,448万円、返済期間35年、金利0.800%(変動金利)の場合

    ※審査により金利は変わる可能性があります。

    物件概要

    交通

    東武アーバンパークライン 江戸川台駅 まで 徒歩13分

    専有面積
    壁芯 76.66㎡
    バルコニー
    9.27㎡ (南西側)
    所在階/階数
    3階/5階
    築年数
    1975年 (昭和50) 6月
    築50年
    建ぺい率
    容積率
    土地権利
    所有権
    構造および階数
    RC(鉄筋コンクリート) 造 地上5階建
    総戸数
    24戸
    小学校区
    新川 (450m)
    中学校区
    北部 (600m)
    地目
    現況
    引渡時期
    即時
    駐車場
    空無
    駐車場月額
    6,000円/月
    管理形態
    全部委託
    管理方式
    管理人日勤
    管理会社
    ㈱小田急ハウジング
    管理費
    8,500円
    修繕積立費
    13,410円
    上水道
    公共
    下水道
    公共
    ガス
    都市ガス
    都市計画
    市街化区域
    用途地域
    設備・条件
    備考
    エレベーター/無
    ペット飼育/不可
    長期修繕計画あり
    取引態様
    仲介

    周辺地図

    (弊社管理番号: 5002363)

    【更新日】2025年12月25日

    【次回更新日】2026年01月25日

    その他周辺物件

    *35年ローン / 金利0.800%の場合

    ※審査により金利は変わる可能性があります。
    詳しくは詳細ページをご覧ください。

    会社紹介 Company

    この物件は0人の方が
    興味を持っています

    流山市の不動産情報

    produced by 東洋ハウジング

    HPを見たと言ってお気軽にお問い合わせください

    無料相談・お電話窓口

    0120-44-6480
    営業時間:10:00〜17:00 定休日:火曜・水曜